Der Neubau des Collège hat Ende April begonnen! Und wie man sieht: jetzt geht es voran. Wir freuen uns!







Unterstützung für die Schule "Les Miracles de Yahve" in Sanguera, Togo
Der Neubau des Collège hat Ende April begonnen! Und wie man sieht: jetzt geht es voran. Wir freuen uns!






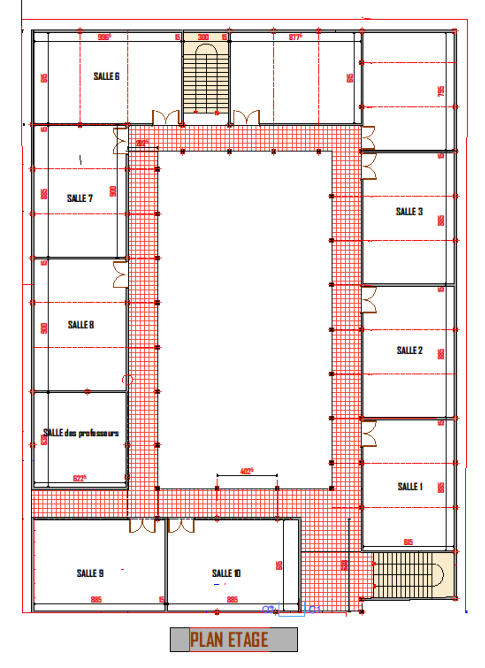
Zum Schuljahr 2022/23 hat „unsere“ Schule ein Collège, also eine weiterführende Schule eingerichtet. Bis jetzt ist das Collège einzügig – und der Platz ist beengt. Deshalb soll es einen Neubau geben. Die Planung ist soweit fertig:


Geplant sind 16 Klassenräume, Zimmer für Verwaltung, Pausenraum und Magazine.
Im Moment hängt es noch an den restlichen Genehmigungen für den Neubau. Die Schulleitung ist aber optimistisch, dass das noch vor Weihnachten klappt.
Sehr erfreut sind wir, dass so viel Geld beisammen ist, dass mit dem Bauen begonnen werden kann. – Es ist in Togo durchaus üblich, dass zwischen den Bauphasen Pausen eingelegt werden. Da die Schule möglichst keinen Kredit aufnehmen möchte, sind wir weiterhin auf Ihre Spenden angewiesen!